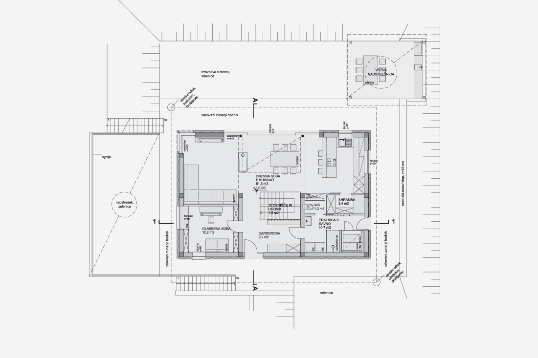
Z velikim veseljem je sodelovati z naročnikom s simpatijo za prijetno in toplo arhitekturo, ki obenem premore spoštovanje do kvalitetne okoliške stavbne tipike. Pa lesek, seveda, ne sme manjkati, hehe …
Skupaj z naročnikom snujemo enodružinsko hišo za njegovo družino, ki bo domovala na slovenskem podeželju, na robu manjše vasi in se bo odpirala proti zeleni, neposeljeni pokrajini. Ni to sanjsko? 😀
–
Projektna faza: idejne rešitve in pridobitev gradbenega dovoljenja ter projekt za izvedbo
Naročnik: zasebni
Vizualizacije: 3D model in Mrož





