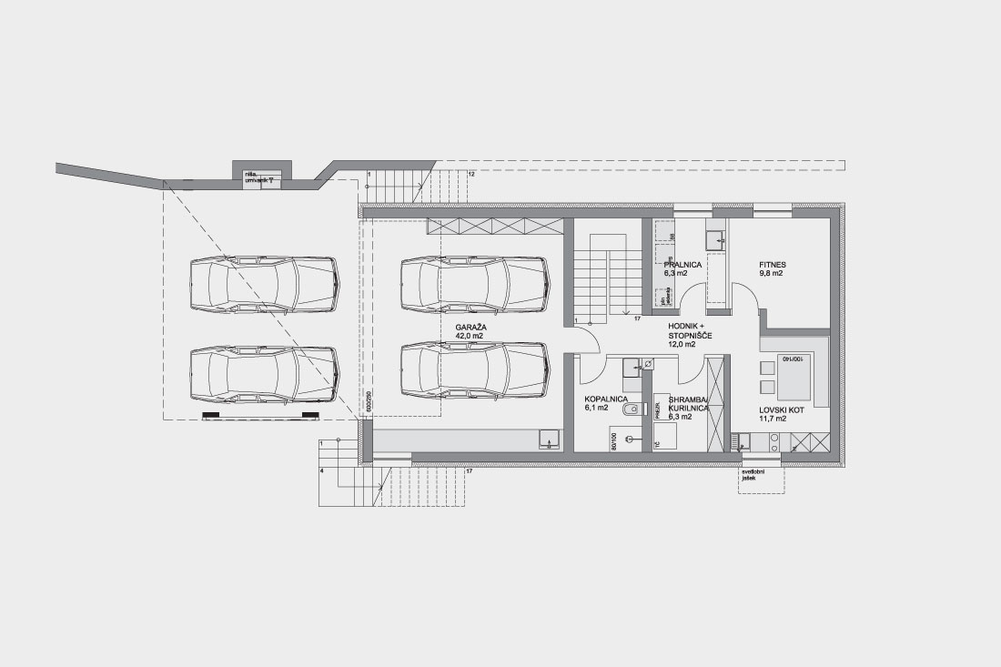
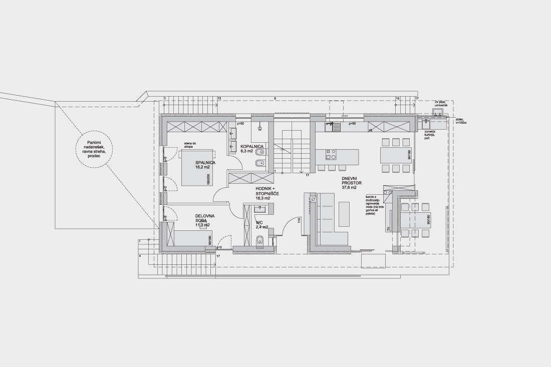
Za mlado družino snujemo nov dom na slovenskem podeželju. Posebna oblika parcele s terenom v naklonu nam v veliki meri narekuje oblikovanje hiše, ki ima servisne prostore in garažo v kletni etaži. Bivalni prostori v pritličju se s krasnimi pogledi odpirajo v smer sonca in na zeleni vrt.
Veseli nas, da ima investitor simpatijo do kvalitetne okoliške arhitekture, zato skušamo vpeljati nekatere tipične tradicionalne arhitekturne elemente, kjer tipično ometano fasado kombiniramo z raznimi lesenimi elementi. Izbor kritine v rdečkasti opečnati izvedbi nam narekujejo lokalni predpisi.
–
Projektna faza: idejne rešitve in pridobitev gradbenega dovoljenja ter projekt za izvedbo
Naročnik: zasebni




